1/3



北海道 札幌市
237.01㎡ (71.69坪)
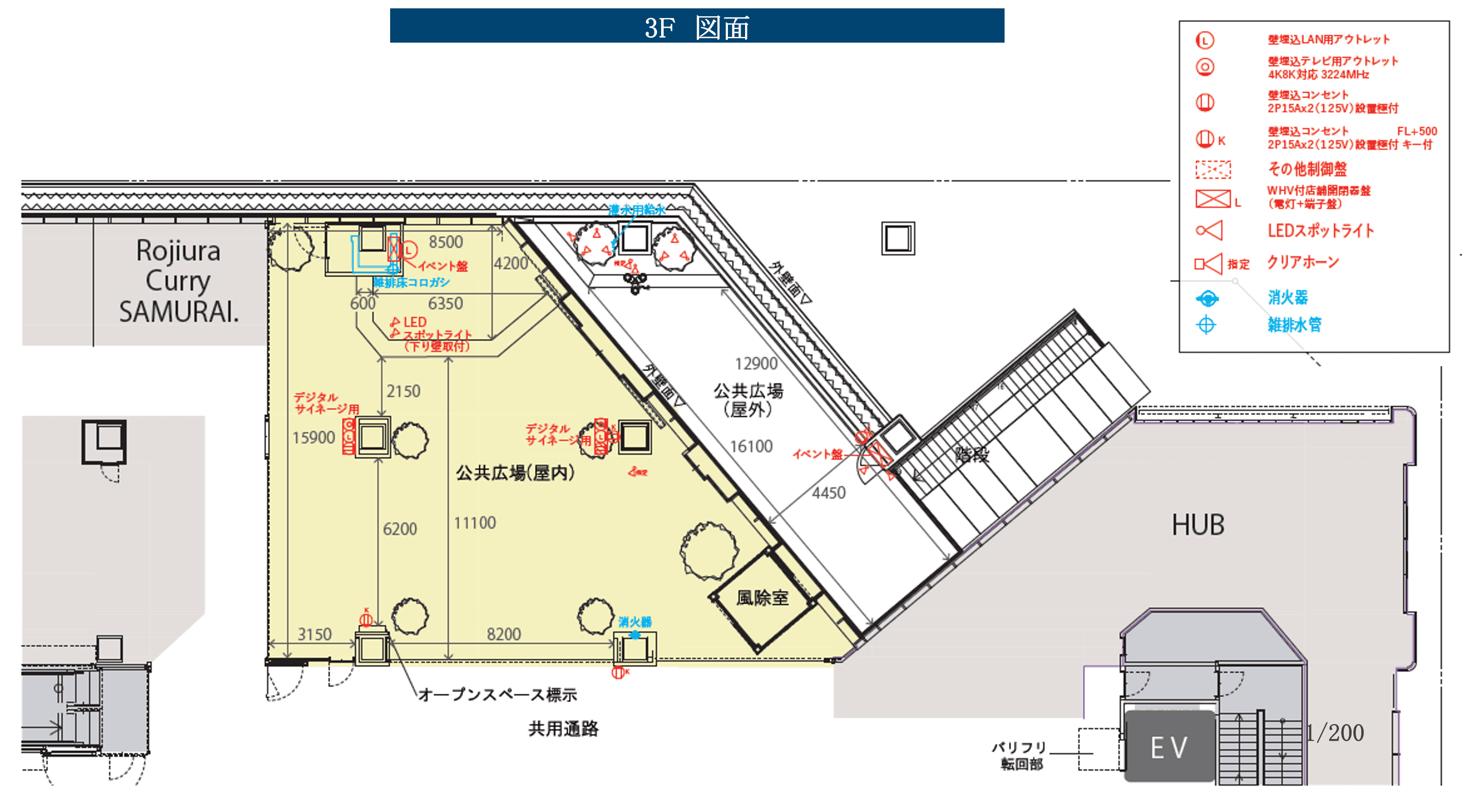
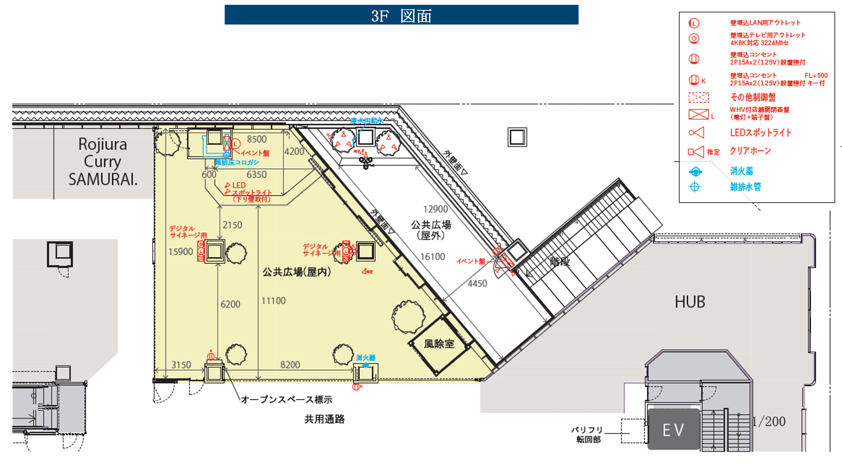
図面・フロアマップ


札幌の繁華街すすきの駅すぐにある最大級の複合ショッピングセンターCOCONO SUSUKINO(ココノススキノ)。 「COCONO SQARE3F屋内広場」は、 4階までの吹き抜けがある開放的な空間です。 ステージブースも用意したイベントスペースとなります。 ▼施設HP https://cocono-susukino.jp/

北海道札幌市
COCONO SUSUKINOフロアの詳細は、以下のURLより、ご確認ください。 https://cocono-susukino.jp/shop/floor/103